Zurück

Erweiterungsbauten auf begrenztem Platz Meersburg

Erweiterungsbauten auf begrenztem Platz

Schlagworte

Holzbau-Referenz
geförderte Holzbauten
EFRE Holz Innovativ Programm
MLR
2024

Projektdetails

ProjektartBauvorhaben - HIP
GebäudetypFertigungshalle mit Büro-/Wohngebäude
Ort88709 Meersburg
Fertigstellung2024
FördernehmerSchmäh Immobilien GmbH, Meersburg
BilderMartin Maier Photography BFF, Holzbau Schmäh, Klingelhöfer Krötsch Architekten, merz kley partner, Susanne Jacob-Freitag

Details zum Projekt

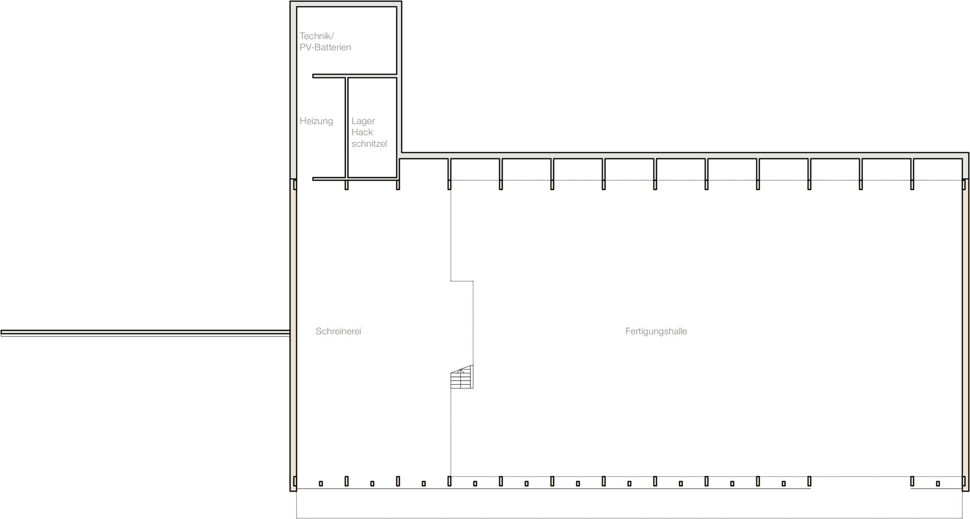
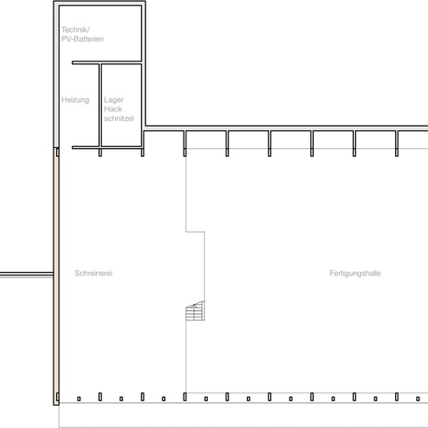
Der Holzbaubetrieb Schmäh verlegte seinen Standort vom Meersburger Zentrum in ein Gewerbegebiet. Dort errichtete er ein KfW-40-Plus-Ensemble in Holzskelettbauweise, bestehend aus einer Produktionshalle und einem sechsgeschossigem Verwaltungs- und Wohngebäude mit zehn Mitarbeiterwohnungen. Im Fokus des Bauvorhabens standen effiziente und robuste Holzbauprozesse, Ressourcenschonung sowie kreislauffähige Konstruktionen ohne Verbundstoffe. Die Neubauten nutzen daher flexibel ausbaubare Tragwerke, regionale Holzarten und recycelte bzw. Abfallmaterialien, mehrfach verwendbare Bauteile nach dem Cradle-to-Cradle-Prinzip sowie vorgefertigte Bauteile. Mechanische Verbindungen ermöglichen einen sortenreinen Rückbau. Die hangangepasste Anordnung der Gebäude reduzierte den Einsatz von Stahlbeton und ermöglichte funktionale Erschließungsebenen. Bautechnik und Baustoffe erfüllen maximale Energieeffizienzstandards und ermöglichen ein – über 50 Jahre berechnet – klima-positives Gebäude. Zur Senkung des Jahresprimärenergiebedarfs werden weitestgehend erneuerbare Energien wie eine Hackschnitzelheizung, eine Wärmepumpe und eine Photovoltaikanlage eingesetzt. Zahlreiche prozessorientierte Vorteile ergaben sich aus der engen Zusammenarbeit zwischen Architekturbüro und Holzbauunternehmen, der Bauphasen-Logistik sowie der lokalen Material- und Bauteilproduktion, z.B. mit Lehm aus der Baugrube.

 

Architektur: Klingelhöfer Krötsch Architekten, München und Meersburg
Tragwerksplanung: merz kley partner, Dornbirn (A)
Holzbau: Holzbau Schmäh, Meersburg
Massivbau: Georg Reisch GmbH & Co KG, Bad Saulgau 
Brandschutz: Hofmann Engineering, Meersburg, und Pirmin Jung Deutschland, Remagen
Baupysik: GSA Körner GmbH, Reichenau
HLS-Planung: Ingenieurbüro Georg Schwald, Steißlingen
Lichtplanung: Beckert & Soanca-Pollak GmbH, München
Landschaftsarchitektur: Widenhorn Gärten am See, Sipplingen

Ähnliche Projekte

Deutscher Nachhaltigkeitspreis Architektur

Das Vorhaben war Finalist im Deutschen Nachhaltigkeitspreis Architektur 2025

https://www.nachhaltigkeitspreis.de/

 

Erweiterungsbauten trotz Hanglage und begrenztem Platz

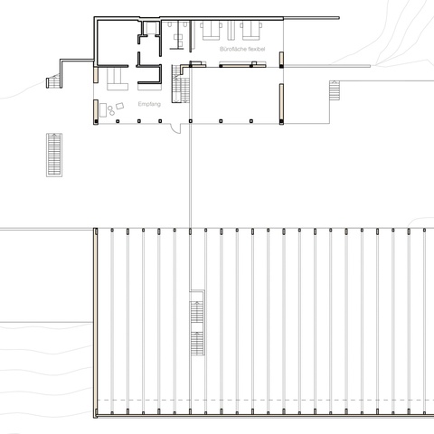
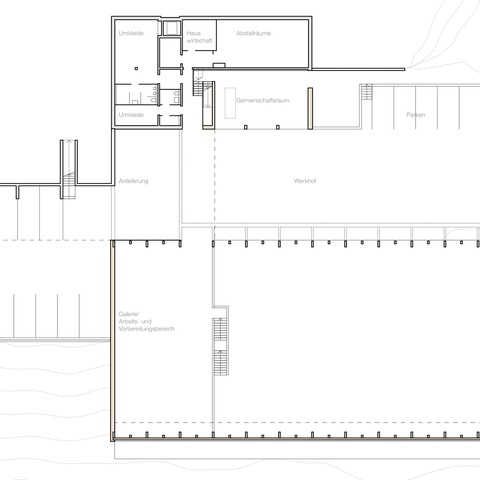
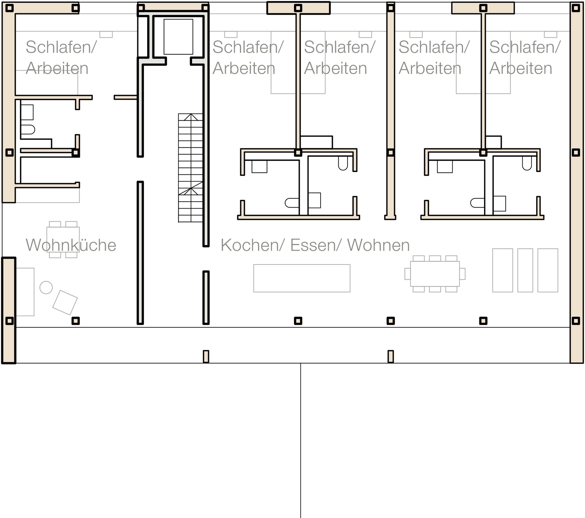
Eine zu klein gewordene Produktionshalle, hohe Wachstumserwartungen, der Wunsch nach modernen Formen der Zusammenarbeit sowie Anforderungen der digitalen Transformation veranlassten Holzbau Schmäh, den ursprünglichen Firmensitz im Zentrum von Meersburg (am Bodensee) aufzugeben. Dort war weder eine Erweiterung der Produktionshalle möglich gewesen, noch die Optimierung der Betriebsabläufe. Der Bauherr errichtete stattdessen im Gewerbegebiet einen aus zwei Gebäuden bestehenden Neubau: Dieser kombiniert eine moderne, 50,10 m lange, 23,20 m breite und 10,50 m hohe Fertigungshalle als Ingenieurholzbau mit einemsechsgeschossigen, 23 m breitem, etwa 13 m tiefen und hofseitig rund 15,70 m hohen Neubau in Holzskelettbauweise. Letzterer beherbergt mit insgesamt 888 m2 Bürofläche unter anderem auch die Planungsabteilung von Holzbau Schmäh, bietet darüber hinaus aber auch Wohnraum für zehn Mitarbeiter (592 m2 Wohnfläche) in Form von zwei Zwei-Zimmer-Wohnungen sowie zwei Wohngemeinschaften mit je vier Zimmern und eigenem Bad. Küche und Aufenthaltsbereich teilen sich die Bewohner. Mit diesen Mitarbeiterwohnungen will Holzbau Schmäh nicht zuletzt die soziale Integration von neuen oder kurzzeitig Beschäftigten unterstützen und das Gelände außerhalb der Arbeitszeiten beleben. Gleichzeitig sollen mit dem von der HTWG Konstanz wissenschaftlich begleiteten Modellvorhaben zukunftsfähige Konstruktionen vorgestellt und ihre Potenziale aufgezeigt werden.

Bei der Planung und Umsetzung verfolgten Architekten, Tragwerksplaner und Holzbau-Unternehmen folgende Ziele:

  • Klima-plus-Konzept: Die Neubauten sollen über 50 Jahre ein negatives Global Warming Potential (GWP) erreichen und so aktiv das Weltklima entlasten.
  • Prozessoptimierung im Holzbau: Einsatz einfacher, bauphysikalisch robuster Konstruktionen, vorgefertigter Bauteile wie Wände, Decken und Sanitärzellen sowie Bauweisen, die mittelständische Holzbauunternehmen effizient umsetzen können.
  • Ressourceneffizienz: Sparsamer und intelligenter Holzverbrauch durch Kastendecken aus Furnier- und Brettschichtholz sowie tragende Holztafelbau-Elemente; Verwendung heimischer Holzarten (Fichte, Eiche, Tanne) und faserarmiertem Estrich bzw. Holzbohlen auf Magerbeton und Glasschaumschotter in der Schreinerei.
  • Cradle-to-Cradle-Prinzipien: Optimierte Bauteile für mehrfachen Einsatz und Wiederverwertbarkeit; weitgehender Verzicht auf Verbundstoffe und Verklebungen. Alle Verbindungen sind mechanisch gefügt, um einen sortenreinen Rückbau und die einfache Wiederverwendung der Bauteile zu ermöglichen.
  • Upcycling: Nutzung von Produktionsnebenprodukten aus Waldkantenbrettern für die Fassade – ein Nebenprodukt der Sägeindustrie, das sonst meist thermisch verwertet wird. Der ursprüngliche Plan, Reststoffe aus der Brettsperrholzproduktion zu verbauen, konnte aufgrund von Lieferschwierigkeiten nicht umgesetzt werden.
  • Flexibilität: Die Tragstrukturen der Fertigungshalle und des Bürogebäudes ermöglichen flexible Grundrisse und eine leichte Veränderbarkeit der Räume – zugunsten einer verlängerten Lebensdauer der Gebäude. So ist der Innenraum der Halle stützenfrei und erlaubt einen hohen Tageslichteintrag. Auch die hochwertigen Oberflächen – Sichtholz, Glas und Sichtbeton – schaffen die Grundlage für vielfältige spätere Nachnutzungen und bilden einen wesentlichen Baustein der Nachhaltigkeitsstrategie.
     

Standort und Erschließung

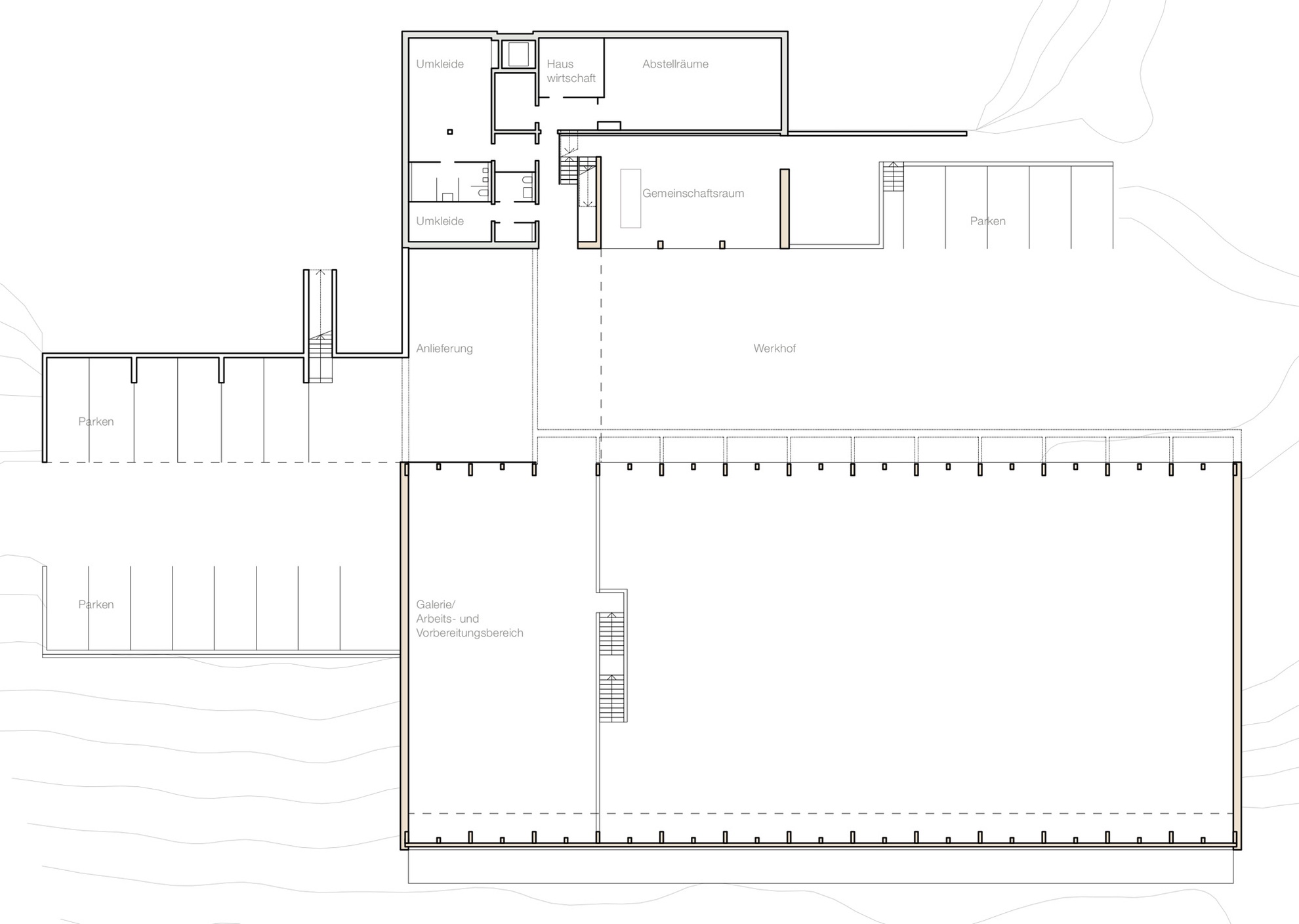
Die Lage der Gebäude orientiert sich am natürlichen Höhenverlauf des Hanggrundstücks: oben das Büro- und Wohnhaus, unten die Fertigungshalle, dazwischen ein niedriger Verbindungsbau – und ein gemeinsamer Hof. Diese terrassierte Anordnung reduzierte einerseits die Eingriffe ins Gelände und den Einsatz von Stahlbeton-Stützwänden. Andererseits ermöglicht sie vielfältige Blickbeziehungen, z. B. vom zweigeschossigen Gemeinschaftsraum über den Hof in die Fertigungshalle. Erschlossen werden die Baukörper an Süd- und Nordseite jeweils auf unterschiedlichen Ebenen. Der Zugang zu den Wohnungen erfolgt von Westen und gewährleistet somit Privatheit.

Tragwerk der Fertigungshalle für viel Lichteinfall

Die rund 50 m lange, 23 m breite und 10,50 m hohe Produktionshalle (Außenabmessungen der fertig errichteten Halle) steht überwiegend auf faserarmiertem Schwerlastestrich auf einer kapillarbrechenden Kiesschicht und einer Dämm- und Drainschicht aus Schaumglasschotter. Lediglich die Fundamente und Hangstützwände sind aus Stahlbeton. Der auf dieser Gründung stehende Holzbau basiert auf Rahmentragwerken in Form von „Trägern auf zwei Stützen“. Die etwa 22,40 m langen Brettschichtholz-Träger auf -Stützen unterschiedlicher Längen (l1: 8,55 m, l2: 9,35 m) reihen sich im Achsabstand von 1,90 m aneinander. Dabei sind die Stützenquerschnitte 20 cm breit und 24 cm bzw. 32 cm tief dimensioniert. Die ebenfalls 20 cm breiten Brettschichtholz-Satteldachträger haben eine variable Trägerhöhe von 80 cm am Auflager und 120 cm in Bindermitte bzw. am First. Sie sind auf der Hangseite seitlich über Stahleinschubverbinder unsichtbar an die 9,35 m hohen Stützen angehängt, und auf der anderen Seite auf den Köpfen der 8,55 m hohen Stützen aufgelegt und an sie angeschlossen. Jede zweite Stütze dient zusätzlich als Auflager für die Kranbahn. Hierzu wurden die Stützenquerschnitte jeweils über eine Höhe von 7,40 m „aufgedoppelt“, das heißt die 24 cm wurden um 34 cm auf 58 cm vergrößert bzw. die 32 cm um 36 cm auf 68 cm. Die sich dadurch ergebenden Versätze dienen der Kranbahn als Auflagerkonsole. Hangseitig sind diese tieferen Hauptstützen im unteren Drittel in die betonierte Hangstützwand eingespannt und übernehmen dadurch gleichzeitig die Queraussteifung der Halle. An der hangabgewandten Südfassade leitet ein 10 cm dicker, 3 m hoher wandartiger Brettsperrholz-Träger die aus den oberen Wandbereichen und dem Dach resultierenden Lasten jeweils in die angrenzenden Hauptstützen ab.In die trägerbreiten Aussparungsschlitze im darüberliegenden Wandbereich wurden die Enden der Satteldach-Binder eingeschoben und  wie bei einem Gabellager gegen Kippen gesichert.

Dies ermöglichte großzügige Glasfronten und -tore im unteren Längswandbereich, während der Wandaufbau die 10 cm dicken Brettsperrholz-Elemente mit außenseitiger Holzfaserdämmung sowie einem gleichermaßen ausgedämmten Ständerwerk aus Konstruktionsvollholz (KVH) kombiniert. Die beiden Giebelwände wurden als Holztafelbau-Elemente – ebenfalls aus KVH-Ständerwerk – mit Zellulosedämmung und einer Beplankung aus Dreischicht-Platten und Holzweichfaserplatten ausgeführt. Die Pfosten-Riegel-Verglasungen der beiden Längsfassaden wurden direkt auf dem Tragwerk montiert. Bei allen geschlossenen Fassaden – auch im Giebelbereicht – kam eine hinterlüftete Konstruktion zum Zug. Die Nordfassade ist mit gesägten Brettern verschalt. Die Süd-, West- und Ostseite ist mit Abfallbrettern bekleidet: einer Waldkantenschalung aus Randabschnitten der Sekundärkonstruktion des Dachtragwerks. Die unregelmäßigen Waldkantenbretter werden von gesägten Balken gefasst, die den Rhythmus des Tragwerks betonen.

Dach- und Deckenaufbau der Fertigungshalle

Das Flachdach der rund 50 m langen und 23 m breiten Halle nutzt Holzfaserplatten als Dämmung sowie vorgefertigte EPDM-Bahnen als Dachabdichtung und Dampfsperre. Ein Gründach mit Blühpflanzen und eine 100-kW-Photovoltaik-Anlage komplettieren den Aufbau. Über Polycarbonat-Stegplatten in Dachebene, direkt im Anschhluss an die Hauptlängswand, fällt Tageslicht über die gesamte Länge von oben in die Halle ein. Zum Schallschutz wurde der geschlossene Deckenbereich zudem mit Holzweichfaserplatten bekleidet, die auf der Sekundärkonstruktion liegen. Eine Befeuchtungsanlage reduziert die Staubentwicklung und ermöglicht optimierte Klebeprozesse.

Ein Holzskelett als Tragwerk fürs Büro- und Wohngebäude

Der hangseitig rund 13,70 m hohe bzw. hofseitig rund 15,70 m hohe Sechsgeschosser mit 23 m Breite und knapp 13 m Tiefe ist als nutzungsneutrale Skelettstruktur konzipiert und damit sowohl flexibel an aktuelle als auch an zukünftige Anforderungen anpassbar. Entsprechend können darin ebenso Büros wie Wohnungen unterkommen. Derzeit befinden sich im Erdgeschoss Umkleiden, Abstellräume und der Gemeinschaftsraum, in den nächsten beiden Stockwerken Büros, der Empfangsbereich und der Fitness-/Schulungsraum, gefolgt von zwei weiteren Geschossen mit Mitarbeiterwohnungen und einem weiteren Geschoss mit Büros. Bodenplatte, Kellerwände und Treppenhaus wurden aufgrund der Hanglage aus Stahlbeton ausgeführt. Die Bodenplatte ist mit Nutzestrich belegt, im Schulungs- und Fitnessraum gibt es Eichenparkett. Die Stützen im Erdgeschoss – dort, wo die Lastkonzentration am höchsten ist – sind aus hochfestem, luftgetrocknetem Eichenholz mit Querschnittsabmessungen von 28 cm x 34 cm. Für alle anderen Stützen kam Brettschichtholz zum Zug.

Außenwände des Sechsgeschossers

Für die hochwärmegedämmten Außenwände des Wohn- und Bürogebäudes kamen 27,60 cm dicke Holztafelbau-Elemente zum Einsatz. Das mit Zellulose voll ausgedämmte Ständerwerk aus KVH erhielt raumseitig für die Luftdichtheit eine Beplankung mit OSB-Platten. Den weiteren Aufbau komplettiert eine mit Holzfaserdämmung ausgefachte Installationsschicht und Lehmbauplatten mit Lehmputz. Auf der Außenseite folgen Gipsfaserplatten und Windpappe sowie der hinterlüftet ausgeführte Fassadenaufbau mit Lärchenholzschalung. Holz-Alu-Elementfenster sorgen für ausreichend Tageslicht, Brandschürzen schützen vor Brandüberschlag. Als Innenwände dienen ebenfalls Holztafelbau-Elemente aus KVH-Ständerwerk mit Holzfaserdämmung, die zur Aussteifung und im Sinne einer Klebstoffreduktion mit einer diagonalen Brettschalung bekleidet wurden.

Geschossdecken und Dach

Die Decken des Gebäudes bestehen aus Kastenelementen mit Rippen aus Brettschichtholz und einer Beplankung aus Furnierschichtholzplatten. Dies ermöglicht große Spannweiten mit punktuellen Auflagern – ressourcenschonend, materialeffizient und mit kompakter Geometrie. Um den Schallschutzanforderungen zu genügen, wurden die Kastendecken vor Ort mit Lehm aus dem Baugrubenaushub beschwert.
Das mit Holzfaserplatten gedämmte Flachdach ergänzen ein Gründachaufbau mit Dachabdichtung und Dampfsperre in Form von vorgefertigten EPDM-Bahnen sowie eine Photovoltaik-Anlage.

Konzept: Vorhandenes Material vor Ort nutzen

Das Wohn- und Bürogebäude wurde mit Fichte, Tanne, Lärche und Eiche nach historischen Vorbildern gebaut und die Materialwahl dahingehend optimiert: So bestehen die Stützen im Erdgeschoss ebenso wie andere stark beanspruchte Bauteile – Handläufe, Brüstungen, Türen und Treppenbeläge – aus hochfestem Eichenholz. Für flächige Konstruktionen und Bekleidungen kam überwiegend Fichte zum Einsatz, für die Fassadenbekleidung witterungsbeständige, regionale Lärche.

Lehm aus der Baugrube – nicht brennbar und schwer – dient als Masseschüttung in Kastendecken und als Lehmputz. Er sorgt für ein gesundes Raumklima, verbessert den Brandschutz und unterstützt eine insgesamt nachhaltige Bauweise.

Auf Farben, Lacke, Beschichtungen und Verbundbaustoffe verzichtet das Bauvorhaben zugunsten von Reparierbarkeit, Wiederverwendbarkeit und Schadstofffreiheit. Nur die Projektionsflächen im Gemeinschaftsraum sind mit weißer Lehmfarbe gestrichen. Die Holzoberflächen stehen stattdessen im Kontrast zu Lehmputz, Sichtestrich, Keramikfliesen im Eingangsbereich, Sichtbeton im Treppenhaus und bei den Hangstützwänden sowie geölten Schwarzstahl an Kran, Geländern und Balkonen – Materialien, wie sie auch in der Denkmalpflege genutzt werden.

Energiekonzept des Gebäudeensembles

Der Energiestandard beider Gebäude beträgt KfW 40 EE. Die Wärmeversorgung erfolgt über eine Hackschnitzelheizung, die mit Produktionsabfällen aus der Schreinerei und Zimmerei betrieben wird. Eine Wärmepumpe dient zur Erzeugung der Energiezufuhr bei Spitzenlast, während Wartungsausfällen und ggf. für die Kühlfunktion im Sommer.

Für den sommerlichen Hitzeschutz wurden alle Süd-, Ost- und Westfassaden mit einem außenliegenden Sonnenschutz ausgestattet. Die Südfassade der Produktionshalle beschirmt ein Vordach, im Büro-/Wohnbau gibt es Balkone. Zur Nachtauskühlung in allen Geschossen gibt es in der Halle und im Gemeinschaftsraum eine Querlüftung über Lamellenfenster und unter Nutzung der thermischen Raumhöhe. Beton bzw. Lehmbauteile dienen als Speichermassen.

Die Stromversorgung erfolgt über eine 100-kW-Photovoltaik-Anlage auf der Halle und einer   30-kW-Photovoltaik-Anlage auf dem Verwaltungsgebäude in Kombination mit einem Batteriespeicher, sodass das Unternehmen 55 bis 60 Prozent des Strombedarfs selbst decken kann. Mit der erzeugten Energie werden unter anderem Ladestationen für E-Bikes sowie drei Doppel-Ladesäulen für E-Autos betrieben.

Ökologische Freiflächenplanung

Zugunsten der Klimaanpassung wurden die Dächer begrünt und der ehemalige Maisacker durch eine Streuobstwiese sowie einem Kräutergarten nach dem Vorbild Hildegard von Bingens ersetzt. Die bestehenden Obstgehölze (Apfel und Birne) wurden durch regionaltypische Baumarten wie alte Obstsorten, Eichen und eine Linde  – angelehnt an die historische Meersburger Kulturlandschaft – ergänzt. Retentions- und Sickerflächen als Mulden und ein kleiner Teich ermöglichen die Versickerung des Regenwassers. Heimische Gewächse, traditionelle Trockenmauern aus Feldsteinen als Lebensraum für Eidechsen sowie Nistkästen für Vögel und Fledermäuse schaffen ökologische Nischen und fördern die Biodiversität. Ein Landschaftsweg verbindet die Gebäude und stärkt das Freiraumerlebnis.

Vorteile des Konzepts

Die für das Bauvorhaben gewählten Bau- und Planungsprozesse brachten einige Vorteile mit sich:

  • Enge personelle Verflechtung: Die Zusammenarbeit zwischen Architekturbüro und Holzbauunternehmen – zugleich Bauherrschaft – ermöglichte einen direkten Abgleich von Entwurf und Konstruktion, wodurch jede Entscheidung sofort auf Umsetzbarkeit geprüft wurde.
  • Optimierte Gebäudeaufteilung: Die funktionale Kombination von Büro, Produktion und Wohnen auf einem Campus förderte betriebswirtschaftliche Synergien, ökologische Potenziale und soziale Integration. Mit Trennung der Baukörper  ließ sich die Anforderungen an die Gebäudeklasse 5 (GK 5) umgehen: Halle nach Industriebau-Richtlinie (F30), Büro- und Wohngebäude in Gebäudeklasse 4 (GK 4).
  • Bauablauf in zwei Abschnitten: Die Unterteilung erlaubte es, die Bauteile des Büro- und Wohngebäudes in der schon fertiggestellten Produktionshalle zu produzieren.
  • Nachhaltige Nutzung des Erdaushubs: Nach Abstimmung mit der Behörde blieb der Erdaushub vor Ort; Teile des Lehms wurden zur Deckenbeschwerung des Büro- und Wohngebäude verwendet.
  • Eigene Produktion statt Auslagerung: Die Gefälledämmung für das Hallendach schnitt der Zimmereibetrieb aus Kostengründen aus Holzweichfaserdämmplatten mit großen Dämmstärken und hoher Festigkeit selbst.
  • Verflechtung Büro und Wohnen: Alle öffentlich zugänglichen Bereiche sind barrierefrei und rollstuhlgerecht.


Projektbeschreibung: Susanne Jacob-Freitag, Karlsruhe, in Kooperation mit Christine Ryll, München